原始戶型圖+毛胚實拍
-
日期:2018-09-15
-
來源:本站
-
點擊:1442
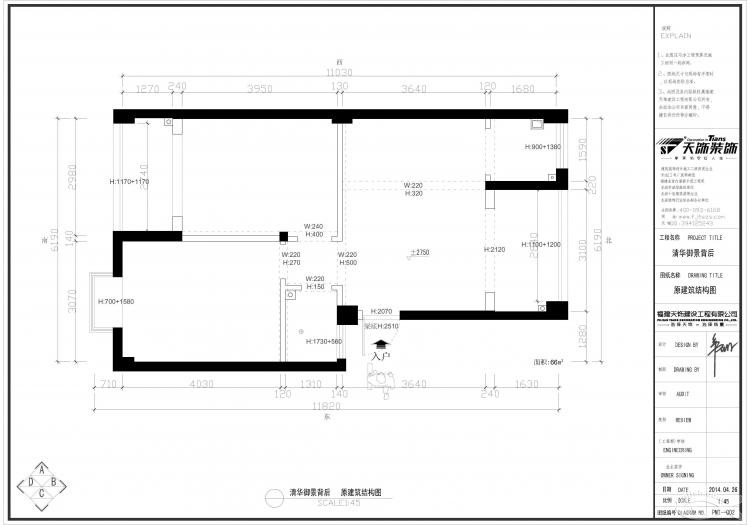
上戶型圖,簡單的結構,使用面積不算大,所以要如何提高空間利用率,是一個很嚴峻的課題。
原戶型:兩室兩廳一廚一衛兩陽臺
使用面積:66平
建筑面積:70平
裝修預算:11W-13W
裝修風格:簡約~


廚房面積太小,100%不夠用,只好犧牲一點飯廳空間了,兩個陽臺對我們小戶家庭太雞肋,有可能會敲掉靠近客廳的這一個。
接著是小小的衛生間,無奈中,麻麻一直渴望能干濕分離,能不能實現還是一個未知數,期待設計師能化腐朽為神奇吧。
先上次臥,因為我大愛凸窗,所以我就要了它了。
這是主臥,北陽臺在這,曬得到太陽,陽臺考慮保留,給麻麻們住。自己對整個房屋的構想已經有了個底,下一步挑建材,找裝修公司。
原戶型:兩室兩廳一廚一衛兩陽臺
使用面積:66平
建筑面積:70平
裝修預算:11W-13W
裝修風格:簡約~

來一些實拍圖,毛胚房黑漆漆,真是木有好感,也顯得房子更小了~

廚房面積太小,100%不夠用,只好犧牲一點飯廳空間了,兩個陽臺對我們小戶家庭太雞肋,有可能會敲掉靠近客廳的這一個。
接著是小小的衛生間,無奈中,麻麻一直渴望能干濕分離,能不能實現還是一個未知數,期待設計師能化腐朽為神奇吧。
先上次臥,因為我大愛凸窗,所以我就要了它了。
這是主臥,北陽臺在這,曬得到太陽,陽臺考慮保留,給麻麻們住。自己對整個房屋的構想已經有了個底,下一步挑建材,找裝修公司。
上一條:裝修公司?還是裝修游擊隊?
下一條:油漆施工開始啦!裝修的污染源來自哪里?